
產品概述
KS11礦用一般型電力變壓器適用于容量1250kVA 及以下電壓為10kV 及以下的油浸式礦用電力變壓器。此類型礦用變壓器是一般型油浸式變壓器,并無防爆要求,主要作為礦井配電時的礦用照明或電力拖動的電源。凡是系列變壓器經運輸后,不需作吊心檢查,即可裝配有關拆卸的零部件,做驗收試驗項目。
型號含義

遵循標準
● GB/T12173-2008 礦用一般型電氣設備
● JB/T3955-2006 礦用一般型電力變壓器
● GB/T17211-1998 干式電力變壓器負荷導則
● GB3836.1-2010 爆炸性氣體環(huán)境用電氣設備 第1 部分:通用要求
● GB3836.2-2010 爆炸性氣體環(huán)境用電氣設備 第2 部分:隔爆型“d"
● GB1094.1-2013 電力變壓器等相關標準設計,制造與檢驗。
產品特點
KS11/KS13 系列礦用一般型電力變壓器變壓器,作為礦井的配電設備,該產品具有體積小、易下井,結構合理,損耗低,散熱性能好等特點。
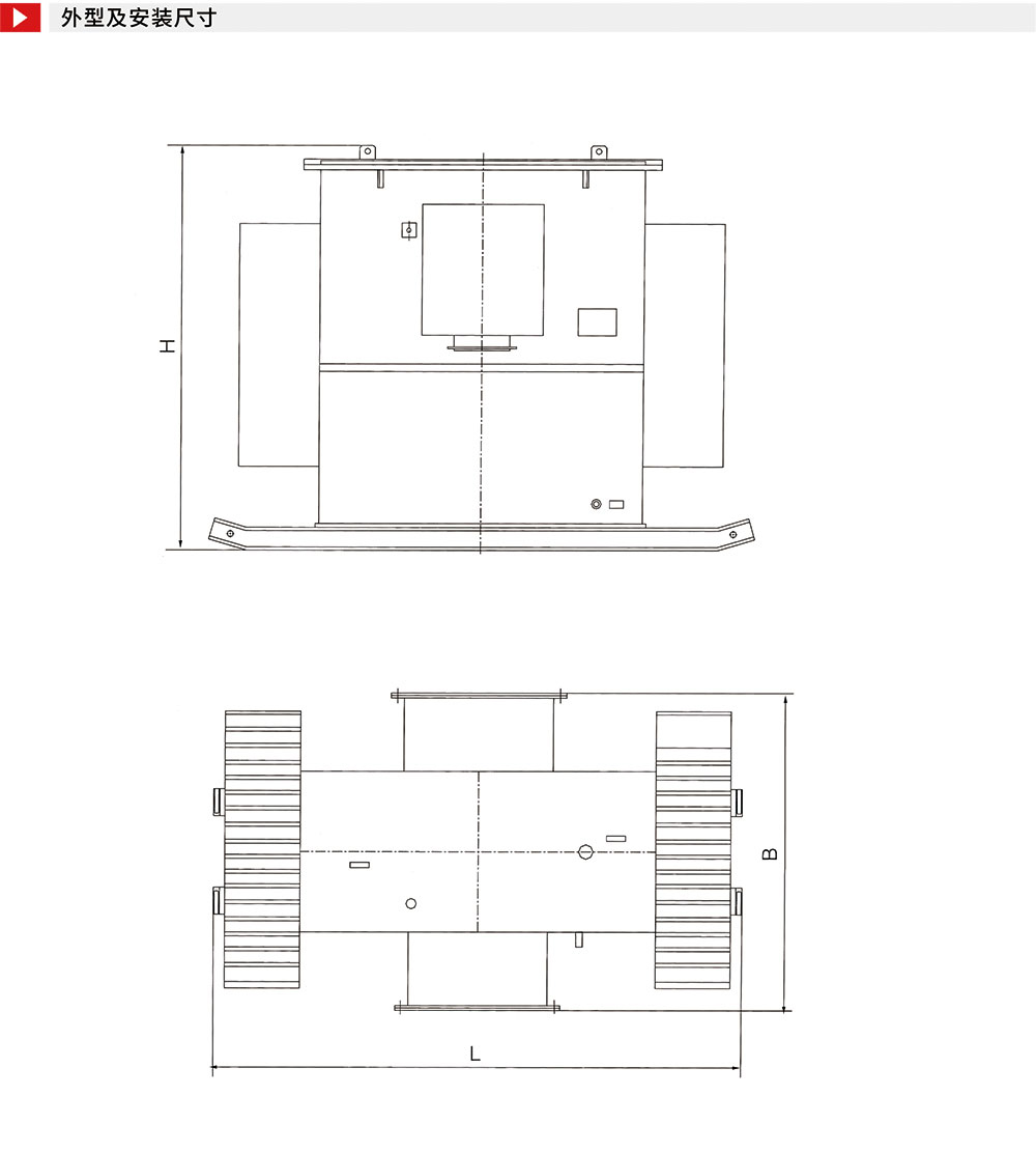
本系列產品采用的晶粒取向高導磁性能硅鋼片疊裝而成,鐵芯為芯式鐵芯,全斜接縫迭積式鐵芯,其鐵芯柱為多級圓截面,低噪音低損耗。油箱結構堅固,箱壁兩側焊有高、低壓電纜接線盒,作為電纜接線之用,高壓線圈須有額定電壓+5% 的分接電壓,利用分接開關變換電壓。變換電壓時,必須先切斷電源,然后去除箱壁上分接開關的風雨罩進行變換電壓。變壓器低壓側允許“Y”型接成693V 或“D”型接成400V 供電,在電纜接線盒內直接裝次級端頭引出六個瓷套供用戶改接。變壓器吊裝利用焊在箱壁的吊攀,變壓器箱底均裝有拖撬,在拖撬上備有安裝孔,可供礦井需要時加裝礦車滾輪。
使用環(huán)境和工作條件
● 高度不超過海拔1500m,環(huán)境另作說明;
● 環(huán)境溫度:
氣溫+40℃;
日平均氣溫+25℃;
年平均氣溫+20℃;
戶外低氣溫-20℃。
● 周圍空氣相對濕對不大于95%(+25℃時);
● 安裝在礦井下雖有煤塵、瓦斯,但無爆炸危險的場所;
● 電源電壓的波形近似地正弦波;


